
風淋傳遞窗在醫療器械生產環境中的應用
風淋傳遞窗在醫療器械生產環境中的應用
風淋傳遞窗在醫療器械生產領域,產品的質量和安全性至關重要。風淋傳遞窗作為一種高效的潔凈室輔助設備,風淋傳遞窗在醫療器械生產環境中扮演著不可或缺的。以下將詳細闡述風淋傳遞窗在醫療器械生產環境中的應用及其重要性。
一、風淋傳遞窗的作用
防塵:風淋傳遞窗通過高速氣流對進入潔凈室的人員和物品進行吹淋,有效去除其表面的塵埃和微生物,降低潔凈室內的污染風險。
隔離:風淋傳遞窗可以隔離不同潔凈度級別的區域,防止污染物的交叉污染,確保醫療器械生產環境的潔凈度。
傳遞:風淋傳遞窗方便潔凈室內外物品的傳遞,減少人員流動,降低交叉感染的風險。
二、風淋傳遞窗在醫療器械生產環境中的應用
潔凈度控制
醫療器械生產對潔凈度要求極高,風淋傳遞窗的應用有助于維持生產環境的潔凈度。根據GB12693-2010《醫療器械生產質量管理規范》的要求,風淋傳遞窗應滿足以下潔凈度標準:
空氣流速:應達到30-50米/秒,確保有效去除塵埃。
過濾效率:風淋傳遞窗配H14高效過濾器,過濾掉0.5微米及以上的塵埃。
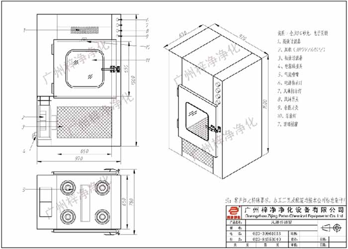
結構設計
風淋傳遞窗的結構設計應符合醫療器械生產環境的特殊要求:
材料選用:應使用耐腐蝕、易于清潔和消毒的材料,如不銹鋼。
密封性能:確保傳遞窗的密封性能良好,防止塵埃和微生物的滲透。
操作規范
在使用風淋傳遞窗時,應遵循以下操作規范:
操作人員應經過專業培訓,了解風淋傳遞窗的操作流程和注意事項。
傳遞物品時應輕拿輕放,避免產生塵埃。
風淋過程中,操作人員應避免直接觸摸傳遞窗內部表面。
維護保養
為確保風淋傳遞窗的長期穩定運行,應進行定期維護保養:
定期檢查:檢查傳遞窗的密封性、氣流速度和過濾效率。
清潔消毒:定期對傳遞窗進行清潔和消毒,防止細菌滋生。
更換過濾器:根據實際情況更換過濾器,確保過濾效果。
三、總結
風淋傳遞窗在醫療器械生產環境中發揮著重要作用,風淋傳遞窗應用有助于提高生產環境的潔凈度,保障醫療器械產品的質量和安全性。因此,在醫療器械生產過程中,應高度重視風淋傳遞窗的選用、操作和維護保養,以確保生產過程的順利進行。